Vertical Four Sided Pouch

Vertical pouch machines can be used to make from a web of film on a roll which is formed into the pouch. Vertical pouch machines are used for many applications and the types of products filled continues to grow. In stores today you will see liquids, powders, food, candy, detergent, pods, nutraceutical products, energy shots, proteins and more packaged in pouches.

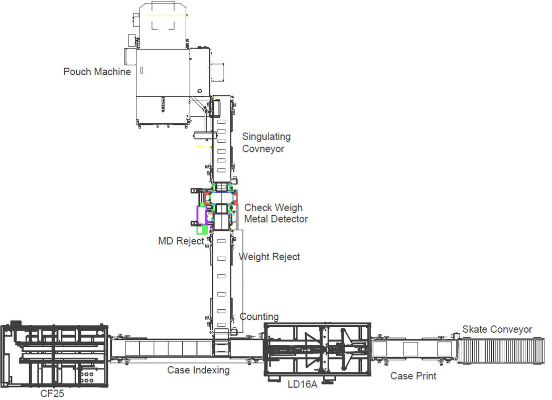
Vertical pouch machines require additional equipment to complete the task, and additional equipment normally employed to develop a turnkey automated packaging system are listed below.

Four-Sided Pouches Machines

Four-sided pouch machines will start with a roll of film and slit it in process to create two webs. One will be used as the front panels and the other will be the backs. Four-sided pouch machines are normally designed to make multiple pouches with each cycle of the pouch machine. The front sheet and the back sheet will be rejoined through a series of rollers. The pouches will be sealed on three sides before the product is inserted, then the fourth seal will be made followed by the pouch sides and ends of being cut into individual pouches. Videos below show normal operation of four-sided pouch machines.

Four-sided pouches are versatile items used across various fields for their unique structure and functionality. They tend to be used where a small format is appropriates. Common uses are listed below:

Retail Packaging: In retail, four-sided pouches are often used for packaging food products, snacks, and cosmetics. Their shape helps merchandize within a stand up carton on shelves, making them visually appealing and easy for customers to handle. The design can include resealable zippers or easy-tear notches.

Travel and Organization: These pouches are popular for organizing small items in luggage or backpacks. They can be used for personal care lotions, toiletries or other travel essentials. The four-sided design allows them to hold their shape, making it easier to store and access items.

Medical Supplies: In the medical field, four-sided pouches are used to package and protect sterile medical instruments, supplies, and medications. Their shape helps maintain the integrity of the contents and can include features like tamper-evident seals.

Promotional and Samples: Companies often use four-sided pouches as part of promotional giveaways or samples. They can be customized with logos.

Four-Sided Pouch

Key Considerations

Product Type: The machine should be suitable for the type of product being packaged, whether it’s powder, liquid, granules, or solids.

Package Size and Shape: VFFS machines can be adjusted to produce various pouch sizes and shapes. Customization options are available for specific packaging needs.

Speed and Efficiency: Consider the required production speed and whether the machine needs to integrate with other systems in the production line.

Film Material: The choice of film material affects the package’s durability, appearance, and sealing properties. The film should be selected based on the product’s requirements and shelf life.

Integration Partner Selection: Finding the right integration partner is a key to success for your packaging automation project. Right Stuff Equipment will help you with the right solution.

A four-sided pouch machine and master case bulk pack turnkey system is shown below. An experienced integrator can help you select the right packaging equipment to deliver a balanced line right for your needs.

Four Sided Pouch Machine

Powder with Integrated Carton Line

Liquid Four Sided Pouch

Four-Sided Pouch with End of Line Automation

Four-sided Pouch Packaging Automation

Integrated pouch equipment packaging will normally incorporate additional equipment to create a turn-key packaging line. Right Stuff Equipment can provide the turnkey system for your facility. Email or call us at 303-327-4704.

Marking and Coding: Incorporated into the filler or executed immediately after the filler to track lot numbers, batch codes and expiration dated. Also used increasingly for track and trace requirements that are becoming more popular. A variety of coding options are available. CIJ, Thermal Transfer, HP, Dot Matrix, Hot Wax, Labeling and Embossing all have their place in packaging automation to identify and code products. Right Stuff Equipment will help you identify the right identification system for your application.

Inspection: These can include metal detection, check weigh, X-ray or vision to identify products or packaging that does not meet quality standards. Many of the larger retailers are requiring X-ray inspection for food products. A letter from Costco is a prominent example.

Structures: Many flexible film automated packaging systems will require a structure of some type. Machine stands, platforms and mezzanines are common.

Feeders: There are many feeders for pouch packaging equipment. Auger feeders, bucket elevators, incline conveyors, pneumatic conveyors are all used to deliver the product to the filler that then delivers the right amount of product to the flexible film packaging machine.

Product Fillers: There are many feeders for pouch packaging equipment. Auger fillers, liquid fillers, scales, counters are common fillers used to deposit the product into the flexible film package.

Cartoning equipment and Case Packing equipment: Usually consists of loading the pieces into cartons or master cases.

Robotic Palletizing: Robots have taken a large part of the palletizing automation market share. The advantages include reliability, performance and competitive pricing.

Ready to get started with a non-palletizing application?

Considering your options for other robotics? Contact Right Stuff Equipment at 303.327.4704, or Email Us for more information.